附近找个女人打抱电话号码,全国一线高端商务经纪人,qq200叫小妹,全国一线高端商务经纪人

您好~欢迎光临深圳市宏力捷电子有限公司网站!
一站式PCBA服务提供商
邮件询价:
sales88@greattong.com
电话咨询:
0755-83328032
QQ在线

张经理:深圳宏力捷PCB设计服务QQ

陈经理:深圳宏力捷PCB抄板服务QQ

叶经理:深圳宏力捷PCB制板服务QQ

王经理:深圳宏力捷PCBA/OEM服务QQ

从焊接角度谈PCB设计时应注意的问题[图文]

发布时间 :2022-11-01 18:07 阅读 : 来源 :技术文章责任编辑 :深圳宏力捷PCB设计部
影响PCB焊接质量的因素
从PCB设计到所有元件焊接完成为一个质量很高的电路板,需要PCB设计工程师乃至焊接工艺、焊接工人的水平等诸多环节都有着严格的把控。
 
主要有以下因素:PCB图、电路板的质量、器件的质量、器件管脚的氧化程度、锡膏的质量、锡膏的印刷质量、贴片机的程序编制的精确程度、贴片机的贴装质量、回流焊炉的温度曲线的设定等等因素。
 
焊接厂本身无法逾越的环节就是PCB设计的环节。由于做电路设计的人往往不焊电路板从而无法获得直接的焊接经验,不知道影响焊接的各种因素;而焊接厂的工人不懂画板,他们只管完成生产任务,没有心思、更没有能力分析造成不良焊接的原因。由于这两方面的人才各司其职,难以有机结合。
 
PCB设计时的建议
下面我就PCB设计的环节给画PCB图的设计布线工程师们提出一些建议,希望在画图的过程中能避免出现影响焊接质量的各种不良画法。将主要以图文的形式介绍。
 
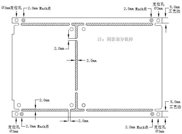
关于定位孔
PCB板的四角要留四个孔(最小孔径 2.5mm),用于印刷锡膏时定位电路板。要求X轴或Y轴方向圆心在同一轴线上,如下图:
 
从焊接角度谈PCB设计时应注意的问题
 
关于mark点
用于贴片机定位。PCB板上要标注Mark点,具体位置:在板的斜对角,可以是圆形,或方形的焊盘,不要跟其它器件的焊盘混在一起。如果双面有器件,双面都要标注。
 
设计PCB时,请注意以下几点:
a、Mark点的形状如以下图案。(上下对称或左右对称)
 
从焊接角度谈PCB设计时应注意的问题
 
b、A的尺寸为2.0mm。
 
c、从Mark点的外缘离2.0mm的范围内,不应有可能引起错误的识别的形状和颜色变化。(焊盘、焊膏)
 
d、Mark点的颜色要和周围PCB的颜色有明暗差异。
 
e、为了确保识别精度,Mark点的表面上电镀铜或锡来防止表面反射。对形状只有线条的标记,光点不能识别。
 
如下图所示:    
 
从焊接角度谈PCB设计时应注意的问题
 
关于留5mm边 
画PCB时,在长边方向要留不少于3mm的边用于贴片机运送电路板,此范围内贴片机无法贴装器件。此范围内不要放置贴片器件。
 
如图:
 
从焊接角度谈PCB设计时应注意的问题
 
双面有器件的电路板应考虑到第二次过回流时会把已焊好的一面靠边的器件蹭掉,严重时会蹭掉焊盘、毁坏电路板。如下图所示:
 
从焊接角度谈PCB设计时应注意的问题
 
所以建议芯片少的一面(一般为Bottom面)的长边离边5mm范围内不要放置贴片器件。如果确实由于电路板面积受限,可以在长边加工艺边,参见本文17条“关于拼板的建议及加工艺边”。
 
不要直接在焊盘上过孔
直接在焊盘上过孔的缺陷是在过回流时锡膏熔化后流到过孔内,造成器件焊盘缺锡,从而形成虚焊。如图:
 
从焊接角度谈PCB设计时应注意的问题
 
关于二极管、钽电容的极性标注
二极管、钽电容的极性标注应符合行规,以免工人凭经验焊错方向。如图:
 
从焊接角度谈PCB设计时应注意的问题
 
关于丝印和标识
请将器件型号隐藏。尤其是器件密度高的电路板。否则,眼花缭乱影响找到焊接位置。如下图:
 
从焊接角度谈PCB设计时应注意的问题
 
也不要只标型号,不标标号。如下图所示,造成贴片机编程时无法进行。
 
从焊接角度谈PCB设计时应注意的问题
 
丝印字符的字号不应太小,以至于看不清。字符放置位置应错开过孔,以免误读。  
 
从焊接角度谈PCB设计时应注意的问题
 
关于IC焊盘应延长
SOP、PLCC、QFP等封装的IC画PCB时应延长焊盘,PCB上焊盘长度=IC脚部长度×1.5为适宜,这样便于手工用烙铁焊接时,芯片管脚与PCB焊盘、锡三者熔为一体。如图:
 
从焊接角度谈PCB设计时应注意的问题
 
关于IC焊盘的宽度
SOP、PLCC、QFP等封装的IC,画PCB时应注意焊盘的宽度,PCB上焊盘a的宽度=IC脚部宽度(即:datasheet中的Nom.值),请不要增宽,保证b(即两焊盘间)有足够的宽度,以免造成连焊。如图:
 
从焊接角度谈PCB设计时应注意的问题
 
放置器件不要旋转任意角度
由于贴片机无法旋转任意角度,只能旋转90℃、180℃、270℃、360℃。如下图B 旋转了1℃,贴片机贴装后器件管脚与电路板上的焊盘就会错开1℃的角度,从而影响焊接质量。
 
从焊接角度谈PCB设计时应注意的问题
 
相邻管脚短接时应注意的问题
下图a的短接方法不利于工人识别该管脚是否应该相连,且焊接后不美观。如果画图时按图b、图c的方法短接并加上阻焊,焊接出来的效果就不一样:只要保证每个管脚都不相连,该芯片就无短路现象,而且外观也美观。
 
从焊接角度谈PCB设计时应注意的问题
 
关于芯片底下中间焊盘的问题
芯片底下中间有焊盘的芯片画图时如果按芯片的封装图画中间的焊盘,就容易引起短路现象。建议将中间的焊盘缩小,使它与周围管脚焊盘之间的距离增大,从而减少短路的机会。如下图:
 
从焊接角度谈PCB设计时应注意的问题
 
厚度较高的两个器件不要紧密排在一起
如下图所示,这样布板会造成贴片机贴装第二个器件时碰到前面已贴的器件,机器会检测到危险,造成机器自动断电。
 
从焊接角度谈PCB设计时应注意的问题
 
关于BGA
由于BGA封装比较特殊,其焊盘都在芯片底下,外面看不到焊接效果。为了返修方便,建议在PCB板上打两个 Hole Size:30mil 的定位孔,以便返修时定位(用来刮锡膏的)钢网。
 
温馨提示:定位孔的大小不宜过大或过小,要使针插入后不掉、不晃动、插入时稍微有点紧为宜,否则定位不准。如下图:
 
从焊接角度谈PCB设计时应注意的问题
 
而且建议BGA周围一定的范围内要留出空地别放置器件,以便返修时能放得下网板刮锡膏。
 
关于PCB板颜色
建议不要做成红色。因为红色电路板在贴片机的摄像机的红色光源下呈白色,无法进行编程,不便于贴片机进行焊接。
 
关于大器件下面的小器件
有的人喜欢将小的器件排在同一层的大器件底下,比如:数码管底下有电阻,如下图:
 
从焊接角度谈PCB设计时应注意的问题
 
如此排版会给返修造成困难,返修时必须先拆数码管,还有可能造成数码管损坏。建议将数码管底下的电阻排到Bottom面,如下图:
 
从焊接角度谈PCB设计时应注意的问题
 
关于覆铜与焊盘相连影响熔锡
由于覆铜会吸收大量热量,造成焊锡难以充分熔化,从而形成虚焊。如图所示:
 
从焊接角度谈PCB设计时应注意的问题
 
图a中器件焊盘直接与覆铜相连;图b中50Pins连接器虽然没直接与覆铜相连,但由于四层板的中间两层为大面积覆铜,所以图a、图b都会因为覆铜吸收大量热量而造成锡膏不能充分熔化。图b中50Pins连接器的本体是不耐高温的塑料,若温度设定高了,连接器的本体会熔化或变形,若温度设定低了,覆铜吸收大量热量而造成锡膏不能充分熔化。因此,建议焊盘与大面积覆铜隔离。如图所示:
 
从焊接角度谈PCB设计时应注意的问题
 
关于拼板的建议及加工艺边
 
从焊接角度谈PCB设计时应注意的问题
 
从焊接角度谈PCB设计时应注意的问题
 
 
总结
现如今,能用软件进行画图,布线并设计PCB的工程师越来越多,但是一经设计完成,并能很好的提高焊接效率,作者认为需要重点注意以上要素。并且培养良好的画图习惯,能够很好的以加工工厂进行很好的沟通,是每一个工程师都要考虑的。

深圳宏力捷电子是一家专业从事电子产品电路板设计(layout布线设计)的PCB设计公司,主要承接多层、高密度的PCB设计画板及电路板设计打样业务。拥有平均超过10年工作经验的PCB设计团队,能熟练运用市场主流PCB设计软件,专业高效沟通保证PCB设计进度,助您早一步抢占市场先机!


深圳宏力捷推荐服务:PCB设计打样 | PCB抄板打样 | PCB打样&批量生产 | PCBA代工代料

微信咨询PCBA加工业务


马上留言咨询,工作人员将第一时间与您取得联系,请耐心等待!

公司名称: ?*
姓名: ?*
电话: ?*
邮箱: ?*
留言内容:
?
网站首页 PCB二次开发 PCB设计 电路板制作 PCBA代工代料 产品中心 关于我们 联系我们 网站地图 English
主站蜘蛛池模板: 厦门市| 尉犁县| 新野县| 天津市| 翁源县| 蚌埠市| 台湾省| 上林县| 克拉玛依市| 贵德县| 利辛县| 健康| 泰安市| 永善县| 庆城县| 天镇县| 武汉市| 沐川县| 墨玉县| 怀柔区| 东方市| 屏东县| 清苑县| 扬州市| 丹江口市| 都匀市| 东乡族自治县| 古浪县| 德令哈市| 临汾市| 琼结县| 靖州| 定日县| 洛浦县| 北碚区| 峨眉山市| 军事| 永年县| 河曲县| 乐业县| 禹州市|